Фасадный изоляционный профиль 70х85х1200
- Монтаж – Турбошурупы\ Гибридный герметик
- Материал - PU высокой плотности
- Габариты - 70х85х1200 мм
- Система - Ласточкин хвост
Профили для выносного монтажа IsoTherm Фасад — правильное положение окна в утеплённой зоне стены. Современный, тёплый и прочный материал на базе высокопрочного полиуретана.
УТОЧНИТЬ СТОИМОСТЬ- ОПИСАНИЕ
- ТЕХНИЧЕСКИЕ ХАРАКТЕРИСТИКИ
- ДОКУМЕНТАЦИЯ
- СЕРТИФИКАТЫ
Фасадные профили IsoTherm для выносного монтажа — стандарт современного монтажа.
Высокоплотный полиуретан — технологическое ядро системы
В основе IsoTherm Green лежит высокоплотный полиуретан с плотностью 220 кг/м³, который сочетает прочность, стабильность формы и выдающиеся теплоизоляционные свойства:
• Теплопроводность — всего 0,030 Вт/м·°С — один из лучших показателей среди монтажных материалов.
• Материал устойчив к растворителям, чистящим средствам и агрессивной среде.
• Допускается установка профилей непосредственно на производстве окон, что ускоряет сборку и монтаж.
• Плотность позволяет надёжно закреплять тяжёлые оконные и дверные конструкции без деформаций и провисаний.
• Любые саморезы и шурупы держатся в материале прочно и стабильно на протяжении всего срока эксплуатации.
Система IsoTherm Green разработана для того, чтобы монтажники, дилеры и застройщики могли гарантированно обеспечивать энергоэффективность монтажного узла без компромиссов по прочности и долговечности.
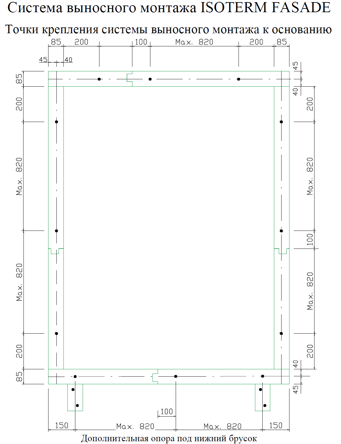
ВЫНОСНОЙ МОНТАЖ ISOTHERMFASADE
Профили для выносного монтажа IsoTherm Фасад — правильное положение окна в утеплённой зоне стены.
Современные здания всё чаще утепляются по контуру фасада — минеральной ватой, каменной ватой или теплоизоляционными плитами. В таких случаях традиционный монтаж окна в плоскости несущей стены приводит к охлаждению откосов, появлению влаги, плесени и грибка. ГОСТ Р 52749–2007 прямо указывает: при утеплённом фасаде окно должно устанавливаться в плоскости теплоизоляции. Именно эту задачу решает система IsoTherm Fasade.
Теплофизически верное решение
Монтаж окна на уровне утеплителя позволяет:
• избежать «холодных краёв» и образования конденсата на откосах,
• сохранить сухой и здоровый микроклимат в помещении,
• повысить энергоэффективность здания,
• максимизировать естественное освещение, благодаря неглубоким откосам.
IsoTherm Фасад одинаково хорошо работает с кирпичом, бетоном, газо- и пенобетоном, керамоблоком и деревом.
Технология монтажа без сложных операций
С внешней стороны стены формируется новый проём из профилей выносного монтажа. Профили закрепляются гибридным полимером (или нейтральным силиконом) и турбошурупами. После установки окна можно сразу переходить к утеплению фасада и декоративной отделке.
Система не требует сложных инструментов или высокой квалификации монтажников — достаточно следовать пошаговому русскоязычному руководству, которое предоставляется компанией.
Надёжность и долговечность конструкции
• Профили из полиуретана высокой плотности не деформируются и обеспечивают постоянный перенос нагрузок на несущую конструкцию.
• Геометрическое соединение обеспечивает жёсткое замыкание и исключает отходы при подгонке.
• Вес профилей мал, что удобно при транспортировке и работе на объекте.
• Монтаж занимает минимальное время: крепление к основанию и герметизация выполняются за считанные минуты.
Ключевые преимущества IsoTherm Фасад
• стабильность формы и отсутствие деформаций,
• влагостойкость и долговечность,
• 100 % переработка без вредных веществ,
• высокая прочность на изгиб и растяжение,
• возможность точной подгонки без пыли и отходов,
• снижение количества «мостиков холода» на уровне креплений,
• полиуретан не поддерживает горение,
• Заказчику предоставляется инструкция по монтажу и рекомендации специалистов,
• идеальная геометрия профилей — всегда прямые и ровные поверхности.
Производство в России и индивидуальные решения
Все профили IsoTherm производятся на российских мощностях с применением современного оборудования. Все профили IsoTherm сертифицированы в России.
Компания выполняет индивидуальную фрезеровку и нарезку по посадочным местам заказчика, что важно при нестандартных архитектурных решениях. Логистика отлажена для поставок в любые регионы России — от Калининграда до Владивостока.
Выгоды для профессионалов отрасли
Для оконных компаний и дилеров
• Расширение ассортимента энергоэффективных решений.
• Возможность поставки готовых монтажных комплектов.
• Повышение конкурентоспособности на тендерах и в B2B-сегменте.
Для монтажников
• Ускорение работы без потери качества.
• Простая и понятная технология, не требующая спецоборудования.
• Снижение количества ошибок и переделок.
Для застройщиков
• Соответствие актуальным требованиям энергоэффективности.
• Сокращение эксплуатационных расходов зданий.
• Увеличение рыночной привлекательности объектов.
Для конечных потребителей
• Сухие откосы, отсутствие плесени и сквозняков.
• Тёплые полы в зоне дверных проёмов.
• Стабильный микроклимат и экономия на отоплении и кондиционировании.
Система IsoTherm Green включает развитую систему монтажных профилей: теплые подставочные профили для ПВХ и алюминиевых систем, термопрофили под отлив и подоконник, термопрофили для алюминиевых порогов, профили для выносного монтажа, цокольные профили и термо-плиты. В данной статье мы подробно остановимся на фасадных и цокольных профилях.
Система IsoTherm Green от ЕТС Групп — это не просто монтажный материал. Это инженерные решения, которые объединяют энергоэффективность, долговечность и удобство работы. Благодаря универсальности и высокой адаптивности профилей система одинаково эффективно применяется в северных и южных регионах, в малоэтажном и высотном строительстве.
ЕТС Групп делает ставку на практичные инновации, которые реально упрощают жизнь монтажникам и повышают качество зданий.
С IsoTherm Green тёплый монтаж становится стандартом, а не исключением.
Поставка решений, а не просто продукции.
| Монтаж | Турбошурупы\ Гибридный герметик |
| Материал | PU высокой плотности |
| Габариты | 70х85х1200 мм |
| Система | Ласточкин хвост |




